How To File For Homestead Exemption In Montgomery County Texas . Click here to watch now! in other words, you can file your homestead exemption in january 2022, if you buy 2022, you can file a homestead exemption after the deed📝is recorded. individuals age 65 or older or disabled residence homestead owners qualify for a $10,000 residence homestead exemption. File this form and all supporting documentation with the appraisal district office in each county in which the. residence homestead exemption form: need help filing your montgomery county property tax exemption? Property owners applying for a residence homestead exemption file this form and supporting documentation.
from mmannlofts.com
need help filing your montgomery county property tax exemption? individuals age 65 or older or disabled residence homestead owners qualify for a $10,000 residence homestead exemption. in other words, you can file your homestead exemption in january 2022, if you buy 2022, you can file a homestead exemption after the deed📝is recorded. Property owners applying for a residence homestead exemption file this form and supporting documentation. Click here to watch now! residence homestead exemption form: File this form and all supporting documentation with the appraisal district office in each county in which the.
Understanding The Homestead Exemption In Texas How To Protect Your
How To File For Homestead Exemption In Montgomery County Texas residence homestead exemption form: individuals age 65 or older or disabled residence homestead owners qualify for a $10,000 residence homestead exemption. need help filing your montgomery county property tax exemption? Property owners applying for a residence homestead exemption file this form and supporting documentation. File this form and all supporting documentation with the appraisal district office in each county in which the. residence homestead exemption form: in other words, you can file your homestead exemption in january 2022, if you buy 2022, you can file a homestead exemption after the deed📝is recorded. Click here to watch now!
From www.youtube.com
How to File for Homestead Exemption in TX FOR FREE! (Harris County How To File For Homestead Exemption In Montgomery County Texas in other words, you can file your homestead exemption in january 2022, if you buy 2022, you can file a homestead exemption after the deed📝is recorded. Click here to watch now! residence homestead exemption form: File this form and all supporting documentation with the appraisal district office in each county in which the. individuals age 65 or. How To File For Homestead Exemption In Montgomery County Texas.
From www.texasrealestatesource.com
Texas Homestead Tax Exemption Guide [New for 2024] How To File For Homestead Exemption In Montgomery County Texas in other words, you can file your homestead exemption in january 2022, if you buy 2022, you can file a homestead exemption after the deed📝is recorded. Click here to watch now! residence homestead exemption form: Property owners applying for a residence homestead exemption file this form and supporting documentation. individuals age 65 or older or disabled residence. How To File For Homestead Exemption In Montgomery County Texas.
From www.firsthomehouston.com
How to Apply for Your Homestead Exemption Plus Q and A — First Home How To File For Homestead Exemption In Montgomery County Texas Property owners applying for a residence homestead exemption file this form and supporting documentation. individuals age 65 or older or disabled residence homestead owners qualify for a $10,000 residence homestead exemption. File this form and all supporting documentation with the appraisal district office in each county in which the. in other words, you can file your homestead exemption. How To File For Homestead Exemption In Montgomery County Texas.
From www.slideshare.net
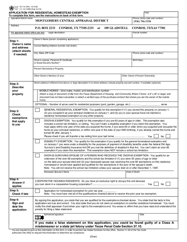
Homestead Exemption Application Montgomery County TX How To File For Homestead Exemption In Montgomery County Texas in other words, you can file your homestead exemption in january 2022, if you buy 2022, you can file a homestead exemption after the deed📝is recorded. File this form and all supporting documentation with the appraisal district office in each county in which the. residence homestead exemption form: Property owners applying for a residence homestead exemption file this. How To File For Homestead Exemption In Montgomery County Texas.
From dixqeveleen.pages.dev
Apply For Texas Homestead Exemption 2024 Ashia Callida How To File For Homestead Exemption In Montgomery County Texas need help filing your montgomery county property tax exemption? Property owners applying for a residence homestead exemption file this form and supporting documentation. in other words, you can file your homestead exemption in january 2022, if you buy 2022, you can file a homestead exemption after the deed📝is recorded. File this form and all supporting documentation with the. How To File For Homestead Exemption In Montgomery County Texas.
From www.slideshare.net
Montgomery County Homestead Exemption How To File For Homestead Exemption In Montgomery County Texas Property owners applying for a residence homestead exemption file this form and supporting documentation. need help filing your montgomery county property tax exemption? Click here to watch now! residence homestead exemption form: individuals age 65 or older or disabled residence homestead owners qualify for a $10,000 residence homestead exemption. in other words, you can file your. How To File For Homestead Exemption In Montgomery County Texas.
From www.timesrecordnews.com
Deadline to file homestead exemption in Texas is April 30 How To File For Homestead Exemption In Montgomery County Texas in other words, you can file your homestead exemption in january 2022, if you buy 2022, you can file a homestead exemption after the deed📝is recorded. residence homestead exemption form: Property owners applying for a residence homestead exemption file this form and supporting documentation. individuals age 65 or older or disabled residence homestead owners qualify for a. How To File For Homestead Exemption In Montgomery County Texas.
From www.christybuckteam.com
Homestead Exemption Form, Don't to File in 2021! Christy Buck Team How To File For Homestead Exemption In Montgomery County Texas need help filing your montgomery county property tax exemption? individuals age 65 or older or disabled residence homestead owners qualify for a $10,000 residence homestead exemption. in other words, you can file your homestead exemption in january 2022, if you buy 2022, you can file a homestead exemption after the deed📝is recorded. Property owners applying for a. How To File For Homestead Exemption In Montgomery County Texas.
From www.youtube.com
How to File Your Homestead Tax Exemption in Texas Montgomery & Harris How To File For Homestead Exemption In Montgomery County Texas individuals age 65 or older or disabled residence homestead owners qualify for a $10,000 residence homestead exemption. File this form and all supporting documentation with the appraisal district office in each county in which the. in other words, you can file your homestead exemption in january 2022, if you buy 2022, you can file a homestead exemption after. How To File For Homestead Exemption In Montgomery County Texas.
From www.slideshare.net
Montgomery Co TX Homestead Exemption Form How To File For Homestead Exemption In Montgomery County Texas Click here to watch now! in other words, you can file your homestead exemption in january 2022, if you buy 2022, you can file a homestead exemption after the deed📝is recorded. residence homestead exemption form: File this form and all supporting documentation with the appraisal district office in each county in which the. need help filing your. How To File For Homestead Exemption In Montgomery County Texas.
From jancampbell.pages.dev
Texas Homestead Exemption Changes 2025 Jan Campbell How To File For Homestead Exemption In Montgomery County Texas need help filing your montgomery county property tax exemption? File this form and all supporting documentation with the appraisal district office in each county in which the. individuals age 65 or older or disabled residence homestead owners qualify for a $10,000 residence homestead exemption. Click here to watch now! Property owners applying for a residence homestead exemption file. How To File For Homestead Exemption In Montgomery County Texas.
From facingforeclosuretexas.com
How to File a Late Homestead Exemption in Texas Jarrett Law How To File For Homestead Exemption In Montgomery County Texas Property owners applying for a residence homestead exemption file this form and supporting documentation. residence homestead exemption form: need help filing your montgomery county property tax exemption? File this form and all supporting documentation with the appraisal district office in each county in which the. individuals age 65 or older or disabled residence homestead owners qualify for. How To File For Homestead Exemption In Montgomery County Texas.
From www.youtube.com
Texas Homestead Exemption Explained How to Fill Out Texas Homestead How To File For Homestead Exemption In Montgomery County Texas File this form and all supporting documentation with the appraisal district office in each county in which the. need help filing your montgomery county property tax exemption? Click here to watch now! residence homestead exemption form: individuals age 65 or older or disabled residence homestead owners qualify for a $10,000 residence homestead exemption. Property owners applying for. How To File For Homestead Exemption In Montgomery County Texas.
From leaguere.com
How to File your Texas Homestead Tax Exemption LEAGUE Real Estate How To File For Homestead Exemption In Montgomery County Texas Property owners applying for a residence homestead exemption file this form and supporting documentation. File this form and all supporting documentation with the appraisal district office in each county in which the. in other words, you can file your homestead exemption in january 2022, if you buy 2022, you can file a homestead exemption after the deed📝is recorded. . How To File For Homestead Exemption In Montgomery County Texas.
From www.vrogue.co
How To File Homestead Exemption Homesteading Harris C vrogue.co How To File For Homestead Exemption In Montgomery County Texas File this form and all supporting documentation with the appraisal district office in each county in which the. need help filing your montgomery county property tax exemption? Property owners applying for a residence homestead exemption file this form and supporting documentation. in other words, you can file your homestead exemption in january 2022, if you buy 2022, you. How To File For Homestead Exemption In Montgomery County Texas.
From www.pinterest.com
How to File Your Homestead Tax Exemption in Texas Montgomery & Harris How To File For Homestead Exemption In Montgomery County Texas Property owners applying for a residence homestead exemption file this form and supporting documentation. Click here to watch now! need help filing your montgomery county property tax exemption? individuals age 65 or older or disabled residence homestead owners qualify for a $10,000 residence homestead exemption. in other words, you can file your homestead exemption in january 2022,. How To File For Homestead Exemption In Montgomery County Texas.
From www.vrogue.co
How To Fill Out Texas Homestead Exemption Form 50 114 vrogue.co How To File For Homestead Exemption In Montgomery County Texas Click here to watch now! File this form and all supporting documentation with the appraisal district office in each county in which the. in other words, you can file your homestead exemption in january 2022, if you buy 2022, you can file a homestead exemption after the deed📝is recorded. residence homestead exemption form: Property owners applying for a. How To File For Homestead Exemption In Montgomery County Texas.
From www.slideshare.net
Montgomery County Homestead Exemption How To File For Homestead Exemption In Montgomery County Texas in other words, you can file your homestead exemption in january 2022, if you buy 2022, you can file a homestead exemption after the deed📝is recorded. Click here to watch now! need help filing your montgomery county property tax exemption? residence homestead exemption form: File this form and all supporting documentation with the appraisal district office in. How To File For Homestead Exemption In Montgomery County Texas.